Italiano
230.000 €

Casalserugo - Casa singola con ricovero attrezzi

Casa singola in vendita • Casalserugo
Stai cercando una casa spaziosa e personalizzabile? Questa soluzione potrebbe essere giusta per te.
A Casalserugo, nella tranquilla e verdeggiante frazione di Ronchi, proponiamo in vendita casa singola al grezzo con adiacente ricovero attrezzi, il tutto circondato da un giardino di oltre 3000 mq.

Questa affascinante residenza singola si estende su una superficie di 202 metri quadrati disposti due due piani, con ambienti spaziosi e luminosi; adiacente all'abitazione troviamo un ricovero attrezzi di 122 mq (h 3,50 mt) da utilizzare come garage/magazzino o ideale anche per creare una dependance per ospitare genitori.

La proprietà è attualmente al grezzo e si presta così ad essere personalizzata e adattata a ogni esigenza specifica.
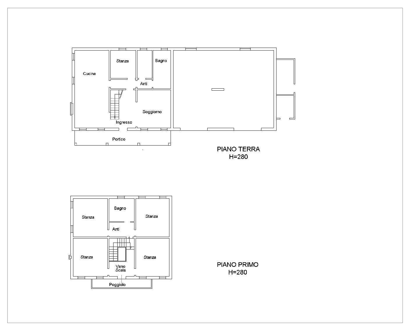
Il piano terra si compone di un ampio portico che protegge la facciata della casa e rappresenta il luogo ideale per rilassarsi e godersi l'aria aperta. Entrando in casa troviamo un grande ingresso con scala a vista che divide il soggiorno dall'ampia cucina. Sempre al piano terra troviamo uno stanza da adibire a studio, un bagno finestrato e una lavanderia.
Al primo piano troviamo 4 camere matrimoniali, un ampio bagno finestrato e un poggiolo.
La casa è dotata di ampie finestre che offrono una splendida vista sul giardino circostante.
All'esterno, l'ampio giardino privato circonda la casa, offrendo spazi ideali per trascorrere piacevoli momenti all'aria aperta con la famiglia, gli amici e gli animali domestici.
Un'opportunità unica per una famiglia numerosa alla ricerca di un'abitazione con ampi spazi da personalizzare.


Caratteristiche principali
Codice
CA836
Città
Casalserugo
Categoria
Casa singola
Prezzo
230.000 €
Locali
9
Camere
4
Bagni
2
Mq
280
Box
2
Mq Giardino
3100
Balconi
1
Classe energetica
G
Stato Immobile
In Costruzione
Grado
Medio
Posizione
Campagna
Panorama
Vista Aperta
Orientamento
Nord Ovest Sud Est
Lati Liberi
4
Giardino
Privato
Tipo Soggiorno
Soggiorno
Tipo Cucina
Abitabile
Riscaldamento
Autonomo

Accessori: Camino, Lavanderia, Ripostiglio

Condividi su
Cookie preference