Italiano
130.000 €

CARTURA - porzione di testa di trifamiliare

Villetta schiera in vendita • Cartura
Vendiamo porzione di testa di trifamiliare in costruzione con possibilità di personalizzare gli interni.
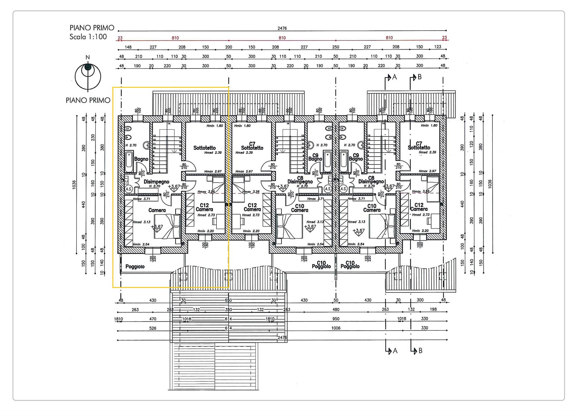
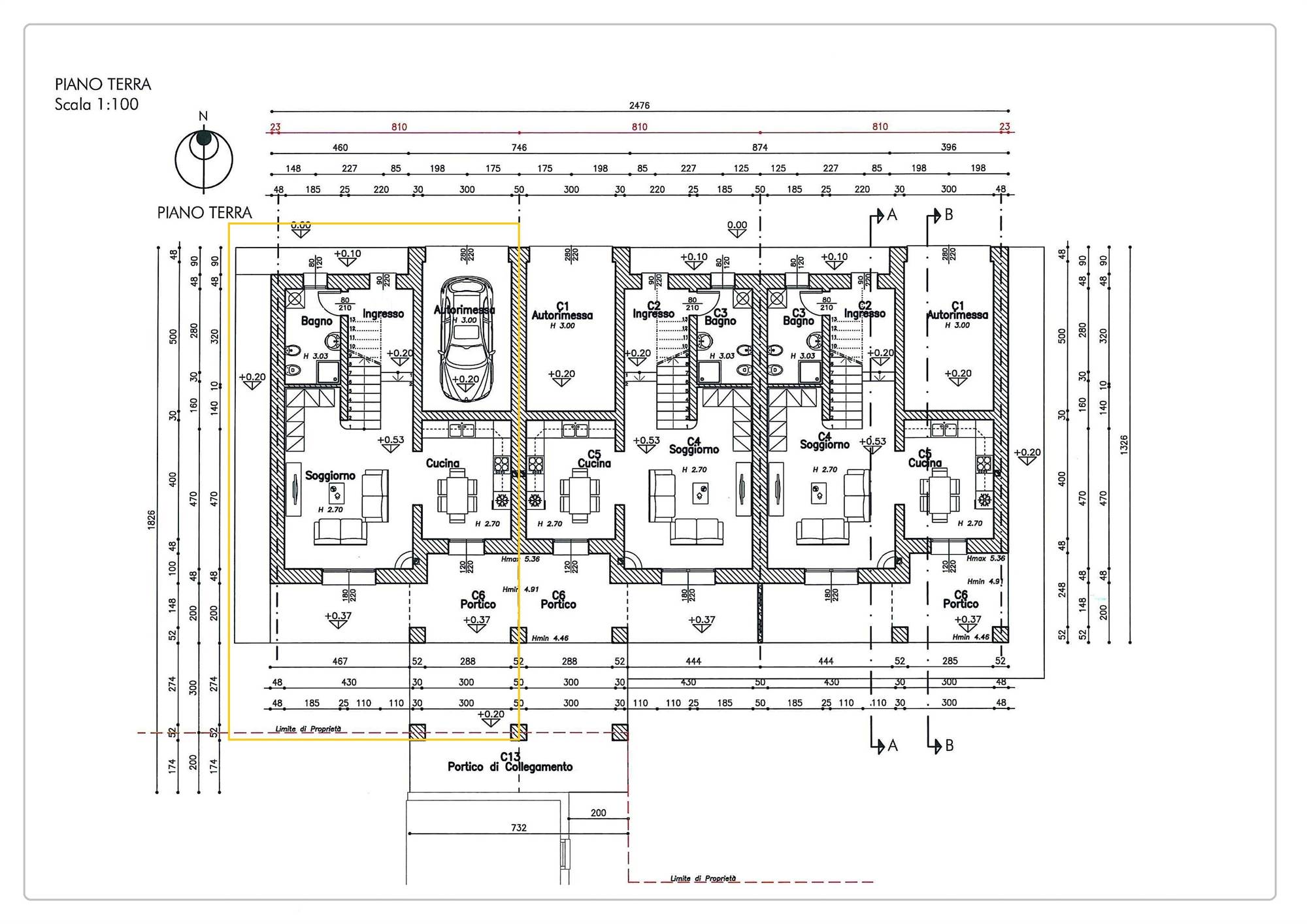
La casa è disposta su due livelli e si compone al piano terra di un ampio ingresso, soggiorno con cucina a vista o separata, un bagno finestrato e un garage per un'auto; al primo piano troviamo la zona notte suddivisa in 3 camere e un bagno.
Dalla zona giorno è possibile accedere ad un portico esposto a sud, perfetto per mangiare all'aperto e godersi il giardino che circonda la casa.
Il prezzo di vendita si intende al grezzo, come si presenta allo stato attuale.
Vicinanze Maserà di Padova, Conselve, Due Carrare, Terrassa Padovana, San Pietro Viminario.
Caratteristiche principali
Codice
CT683
Città
Cartura
Categoria
Villetta schiera
Prezzo
130.000 €
Locali
5
Camere
3
Bagni
2
Mq
150
Box
1
Classe energetica
A3
Stato Immobile
In Costruzione
Grado
Medio
Orientamento
Nord Ovest Sud
Lati Liberi
3
Giardino
Privato
Tipo Soggiorno
Soggiorno
Tipo Cucina
Abitabile
Riscaldamento
Autonomo

Accessori: Cancello Elettrico, Doppi Vetri, Porta Blindata, Video Citofono

Condividi su
Cookie preference